Produkte

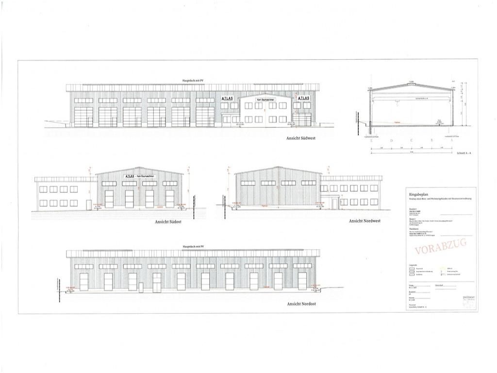
Kern Erlangen Neubau 2026

Kern Baumaschinen Erlangen,

  • Zweigniederlassung der Atlas-Kern GmbH,
  • am Pestalozziring 10, 91058 Erlangen,
  • Telefon Zentrale  :  09131 / 48090-0 
  • Leistungsstarke Service Werkstatt
  • Verkauf von Case Raupenbagger, Leistungslader, Motorgrader,
  • Verkauf von Atlas und Yanmar Mobilbagger
  • Verkauf von Yanmar Minibagger und Radlader
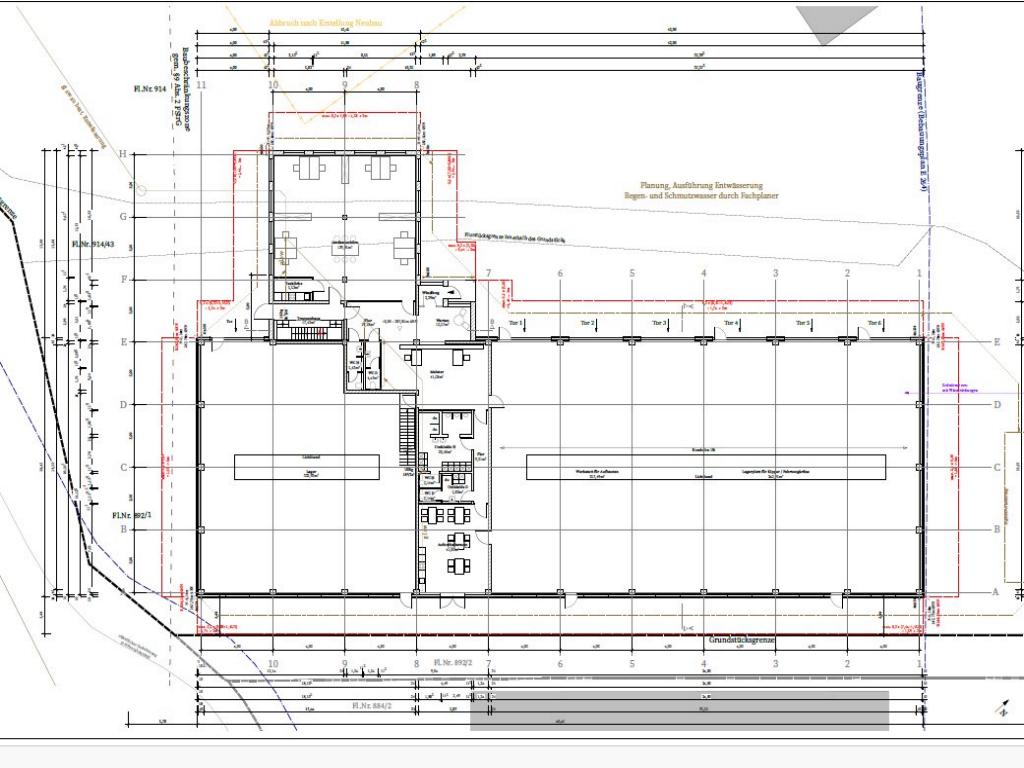
  • Grundstücksfläche 14.500 m²
  • Hallenfläche               1.300 m²

Neubau in 2026

  • Reparaturwerkstatt
  • Ersatzteillager
  • Bürogebäude